[切换]
手机端
帮助中心
收藏
登录
注册
首页
设计大赛
设计师
优选商城
精选案例
设计协会
软装学院
跨界合作
设计联盟
战略合作
糜建华
设计师
擅长:
现代
美式
中式
法式
设计费用:200-499元/㎡
联系设计师
0
粉丝
0
关注
专业认证
已关注
——案例目录——
归真
美式小奢
归真
发布时间: 2019-10-17 07:13:16查看人数: 124分享到:
收藏
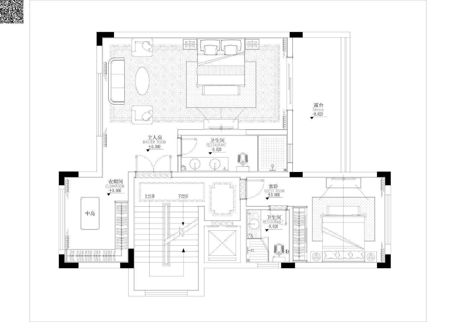
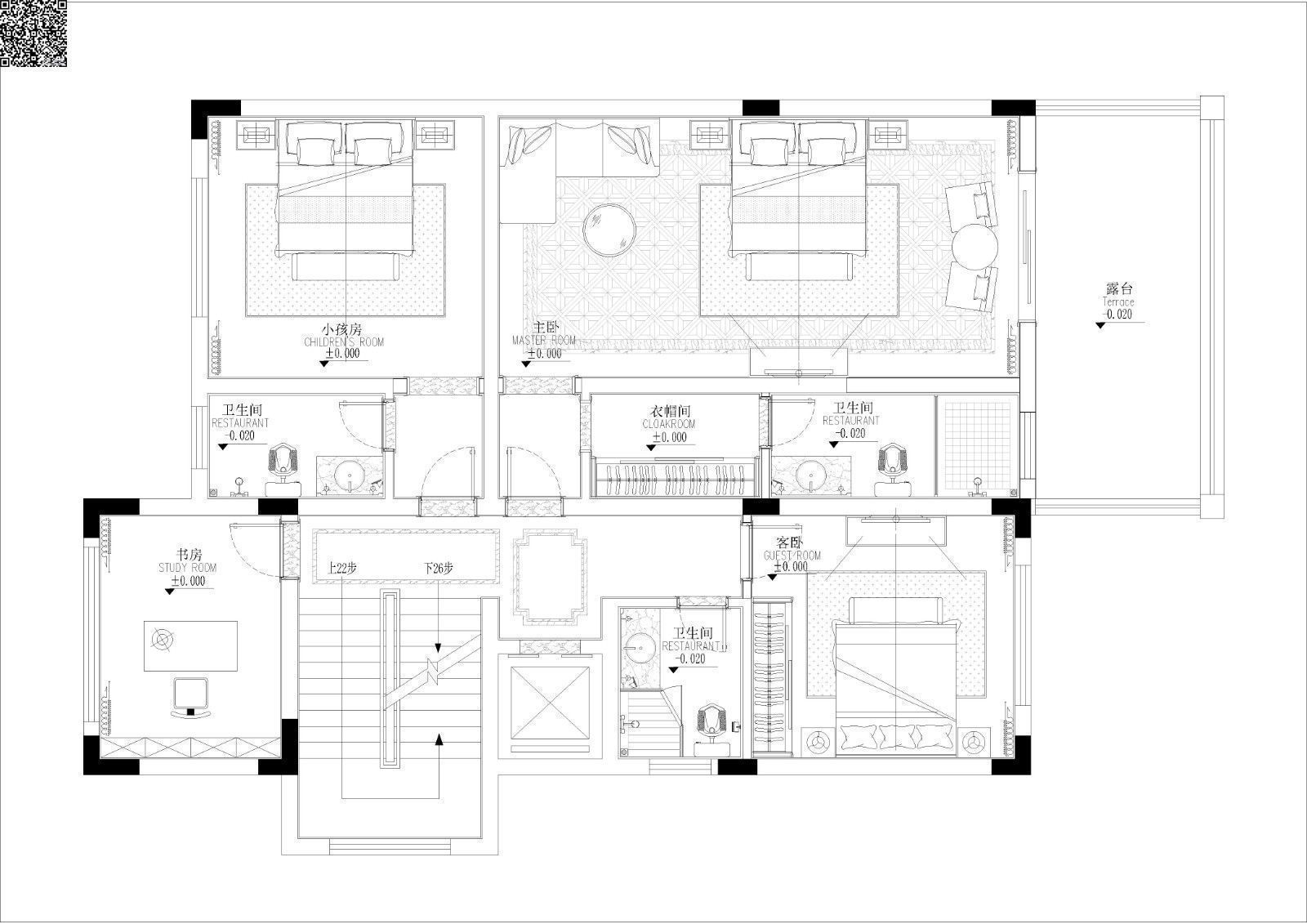
新中式,保留传统文化底蕴,结合新时代潮流趋势,打造出别具一格,适合新时代人们的体验空间,简约,大气,不失品味与格调。
上一篇: 没有了
下一篇:美式小奢
积分商城
联系客服
购物车
回到顶部
]
中国软装平台
联系设计师
*
所在城市
选择地区
成都市
自贡市
攀枝花市
泸州市
德阳市
绵阳市
广元市
遂宁市
内江市
乐山市
南充市
眉山市
宜宾市
广安市
达州市
雅安市
巴中市
资阳市
阿坝藏族羌族自治州
甘孜藏族自治州
凉山彝族自治州
*
楼盘名称
*
房屋面积
㎡
*
手机号码
*
需求阐述
提交
取消